

- Common magnesia Board
- Dampproof board
- Vogue fiber cement board
- Vogue calcium silicate b...
- Vogue green ceiling
- Acousitc perforated pane...
- Vogue laminate decrative...
- Vogue fiber cement ceili...
- Vogue fiber cement acous...
- T-BAR
- Auto Screw attachment
Vogue platform board
Wood grain mgo board
Characteristic
Lining board of the fire door
Product data
XPS/EPS Sandwich panels
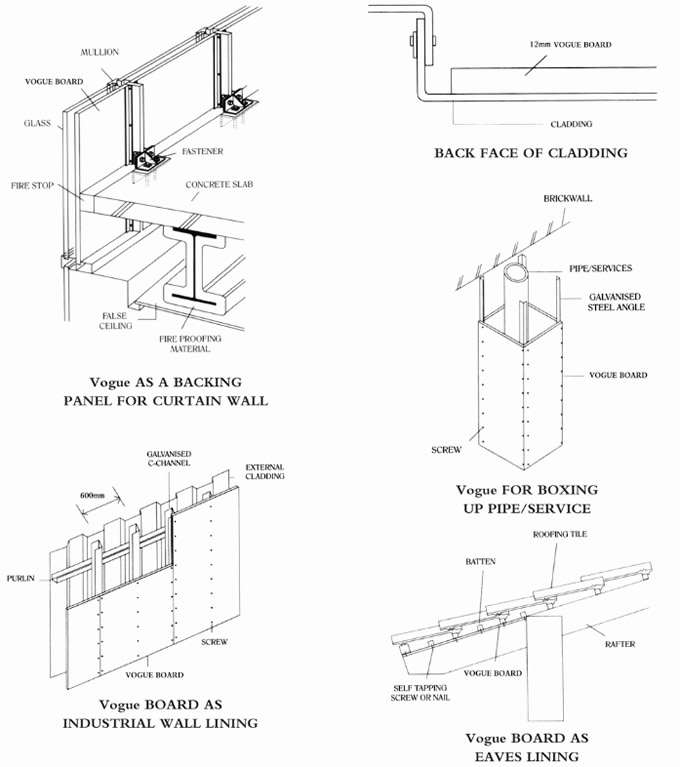
Working drawings
Carry and cut
Construction
Localhost:>>Products


-Go back-Working drawings








